project | renovation
of a farmhouse
cologno al serio (bg)2017
The project involves the renovation of an old farmhouse located in the plains, in the lower province of Bergamo, in a location that is easily accessible but that lies near an industrial area. The aim of the project is to prove that abandoned places that for many years were an economic and employment resource and were part of a system capable of preserving and improving the natural environment can be made productive again.
- © archos archive
- © archos archive
- © archos archive
- © archos archive
- © archos archive
© archos archive
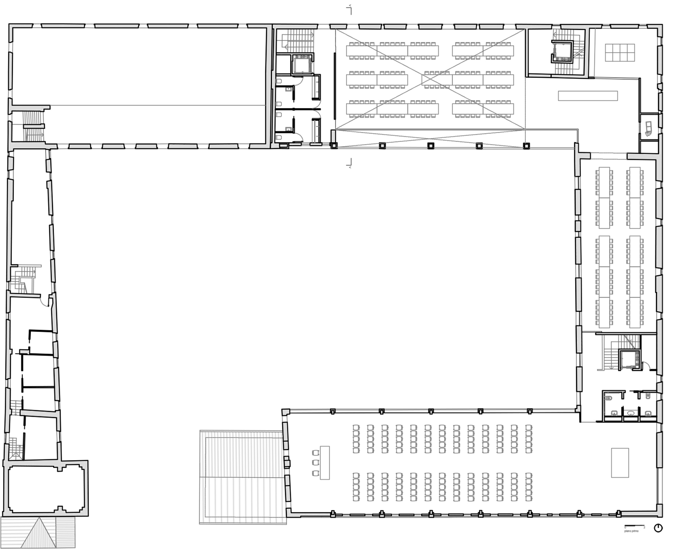
In fact, history and memory are the foundations of the identity of a community; however, identity, like history and memory, is not a fact, it is a process, it is ongoing construction that is always new. As a whole, the building complex will offer services in the catering and banqueting sector. Any elements added in the past will be removed and the original main access will be restored, which will thus be the only access to the building complex.
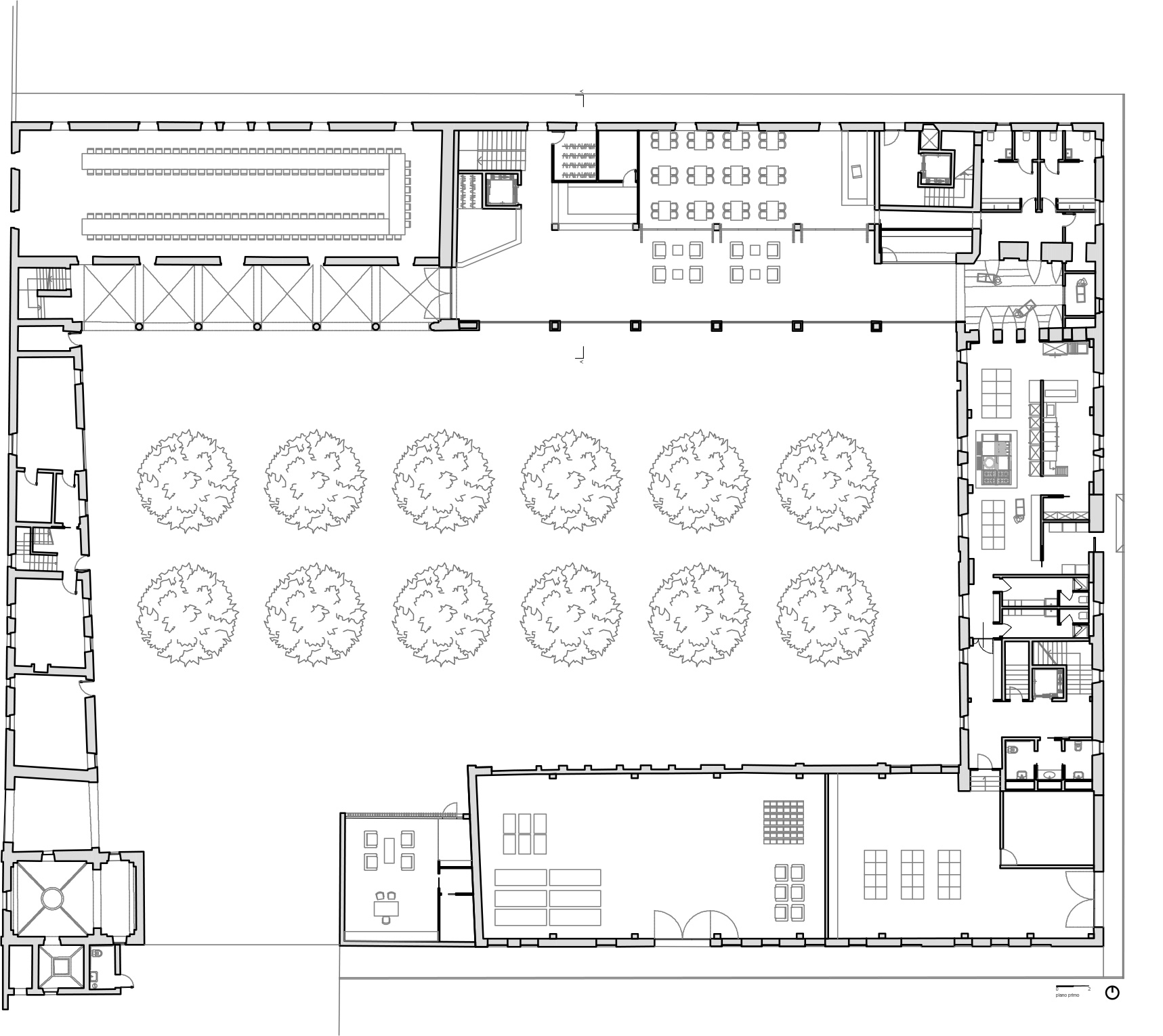
The inner courtyard will be restored to its original size and provided with a beaten earth floor and two rows of tilia to protect it from the sun. As far as the park is concerned, only local wood or wood that has been traditionally used for a long time in the area will be used.
© archos archive
The total surface of 25,400 square meters will be divided into thematic areas, each with a different function. Once the original entrance to the courtyard on the side of the church has been restored, it will be decorated with a double row of cypress poplars.
© archos archive
© archos archive
© archos archive




