progetto | recupero
di un casale
cologno al serio (bg) 2017
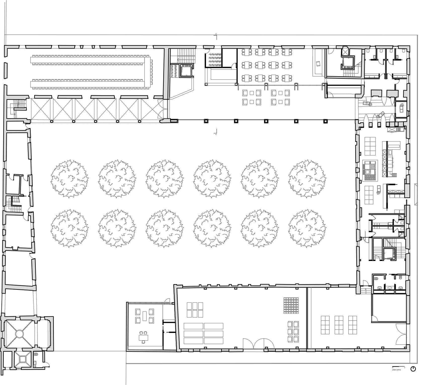
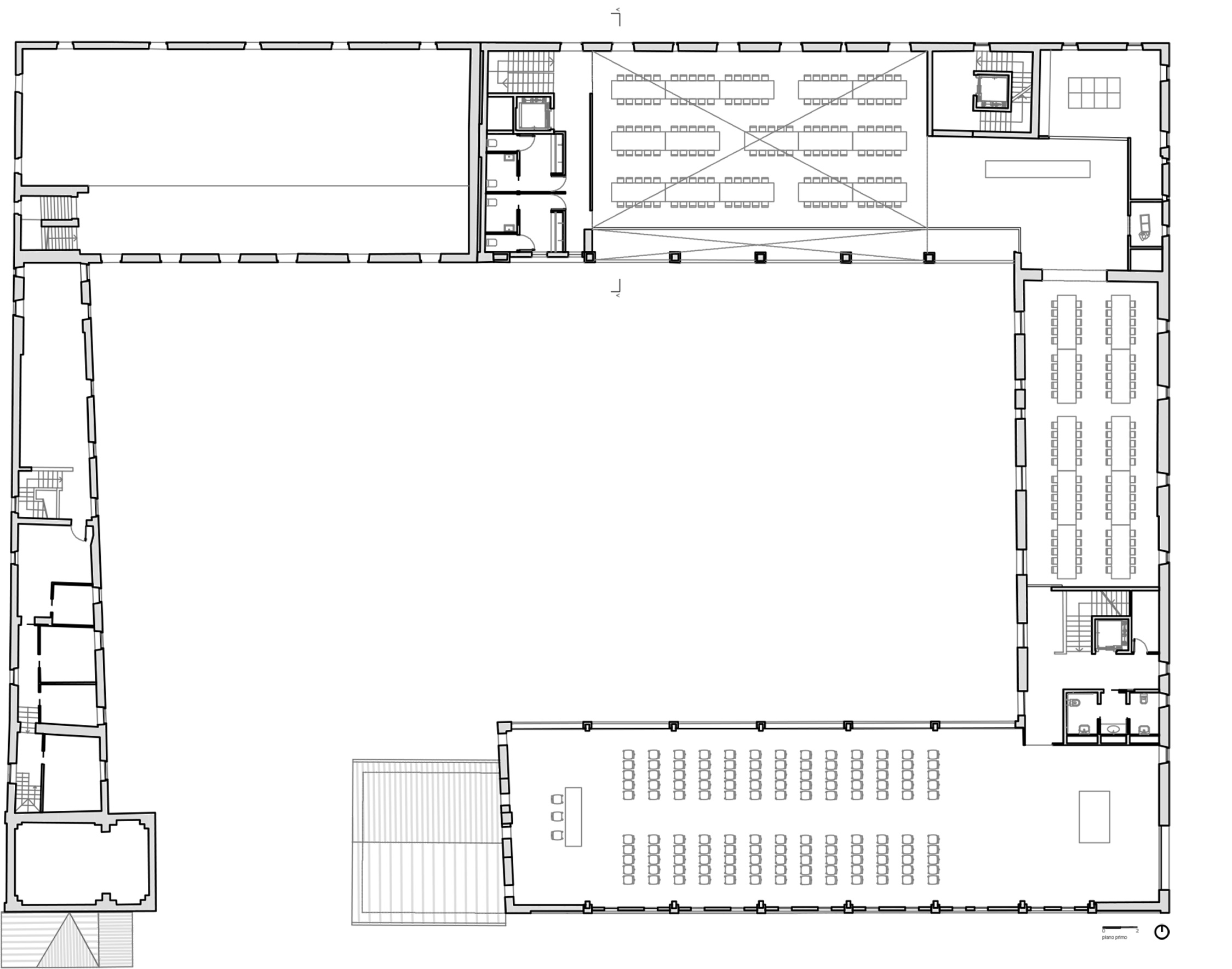
Il progetto prevede il recupero di un antico casale situato in pianura, nella bassa provincia bergamasca, in un’area facilmente accessibile ma condizionata dalla presenza di una zona industriale. L’intenzione è quella di dimostrare che è possibile far tornare produttivi quei luoghi che per così tanti anni hanno rappresentato una risorsa economica e occupazionale in un sistema in grado di presidiare e migliorare l’ambiente naturale.
- © archivio archos
- © archivio archos
- © archivio archos
- © archivio archos
- © archivio archos
© archivio archos
Storia e memoria sono infatti la sostanza dell’identità di una comunità, tuttavia l’identità, come la storia e la memoria, non è un fatto, ma un farsi, un processo, una costruzione sempre nuova. Il complesso edilizio, che avrà nel suo insieme una funzione ricettiva nel settore della ristorazione e della banchettistica, verrà ripulito da tutte le superfetazioni e l’impianto ricondotto al suo unico accesso principale originario. La corte interna tornerà alla sua dimensione originaria e avrà una pavimentazione in terra battuta e due filari di tilia per ripararla dal sole. Il progetto per il parco utilizzerà esclusivamente essenze autoctone o ormai consolidate nella tradizione della regione.
© archivio archos
I complessivi 25.400 mq saranno trattati in aree tematiche col preciso scopo di assolvere a più funzioni. Ripristinato l’ingresso originario alla corte dal lato della chiesa, lo stesso verrà contrassegnato da un doppio filare di pioppi cipressini.
© archivio archos
© archivio archos
© archivio archos




