new winemaking
cellar
cinigiano (gr)ongoing
The project stems from the intersection of winemaking tradition and contemporary sensitivity to the landscape. Set within a high environmental value context, the architecture follows principles of environmental sustainability and energy efficiency, reinterpreting the forms of rural construction in a contemporary and essential way.
- © archos studio
- © archos studio
- © archos studio
- © archos studio
© archos studio
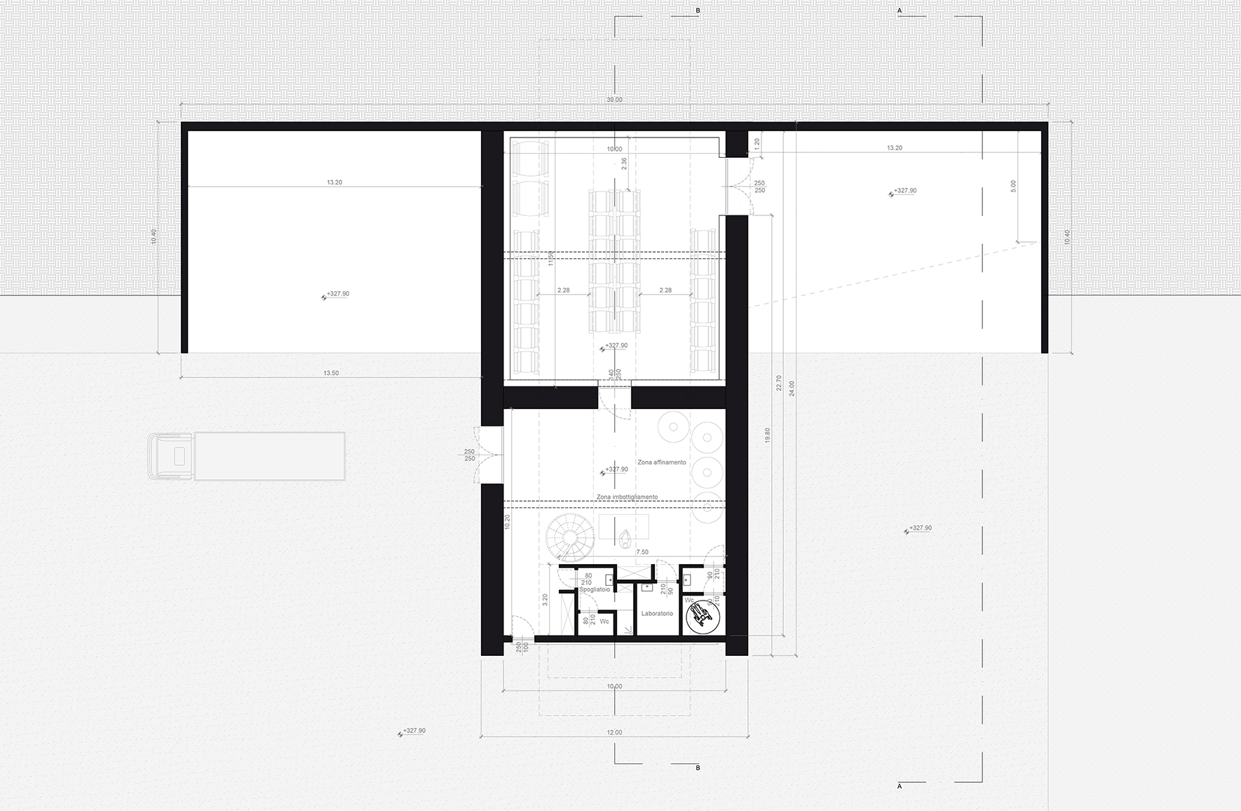
The building is embedded into the hillside, taking advantage of the site's natural elevation changes to optimize production processes: grape delivery occurs from above by gravity, while the lower levels house barrique aging rooms, naturally cooled thanks to the partially buried structure.
© archos studio
At the heart of the design is a central volume dedicated to vinification, aging, and bottling, topped by a barrel-vaulted roof that hosts a suspended walkway and a panoramic tasting area. Two additional outdoor zones serve as storage and warehouse spaces. The use of corten steel reinforces the material bond with the earth, accompanying the transformation of wine with an architecture that is understated, durable, and deeply evocative.
© archos studio
Large arched windows facing east and west flood the interior with natural light, while skylights and targeted openings enable gravity-fed grape processing and offer a luminous, immersive experience for both work and hospitality.
© archos studio



