nuova cantina
di vinificazione
cinigiano (gr)in corso
Il progetto nasce dall’incontro tra tradizione produttiva e sensibilità contemporanea verso il paesaggio. Inserita in un contesto ad alto valore ambientale, l’architettura si sviluppa secondo principi di sostenibilità ambientale ed efficienza energetica, reinterpretando in chiave essenziale e contemporanea le forme dell’edilizia rurale.
- © studio archos
- © studio archos
- © studio archos
- © studio archos
© studio archos
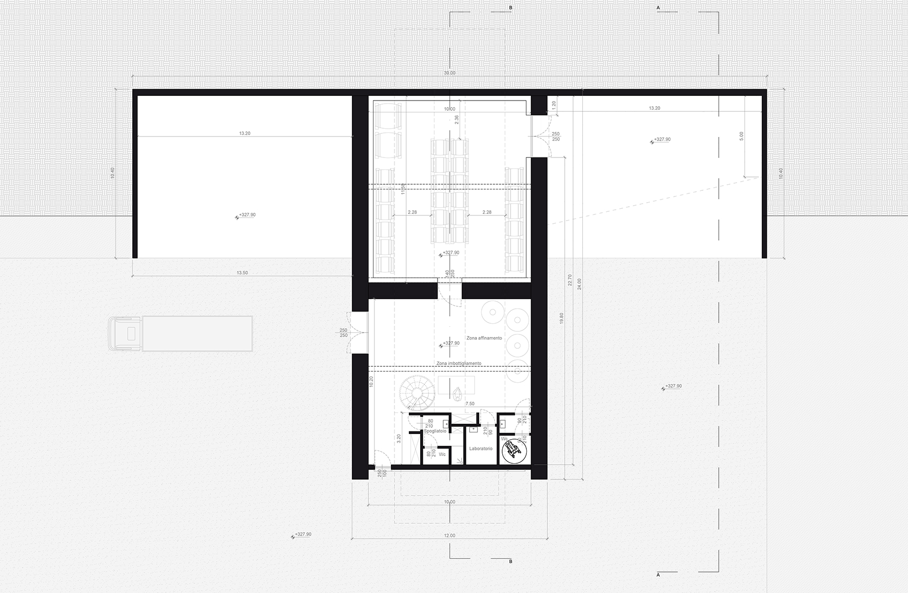
L’edificio è incastonato nella collina e sfrutta i diversi piani di campagna per ottimizzare i processi produttivi: il conferimento delle uve avviene per gravità dall’alto, mentre nei livelli inferiori trovano spazio i locali per l’affinamento in barrique, mantenuti naturalmente freschi grazie all’interramento parziale della struttura.
© studio archos
Il cuore del progetto è un corpo centrale dedicato alla vinificazione, affinamento e imbottigliamento, sovrastato da una copertura a botte che ospita una passerella sospesa e un’area panoramica per le degustazioni. L’uso dell’acciaio corten rafforza il legame materico con la terra, accompagnando la trasformazione del vino con un’architettura sobria, resistente e fortemente evocativa.
© studio archos
Due spazi esterni completano l’impianto, destinati a magazzino e stoccaggio. Le grandi vetrate arcuate, rivolte a est e ovest, garantiscono luce naturale agli ambienti interni, mentre lucernari zenitali e aperture mirate assicurano un conferimento per gravità e un’esperienza di lavoro e accoglienza immersa nella luce e nel paesaggio.
© studio archos



