école technique
pape jean XXIII
port-au-prince (haiti)2013
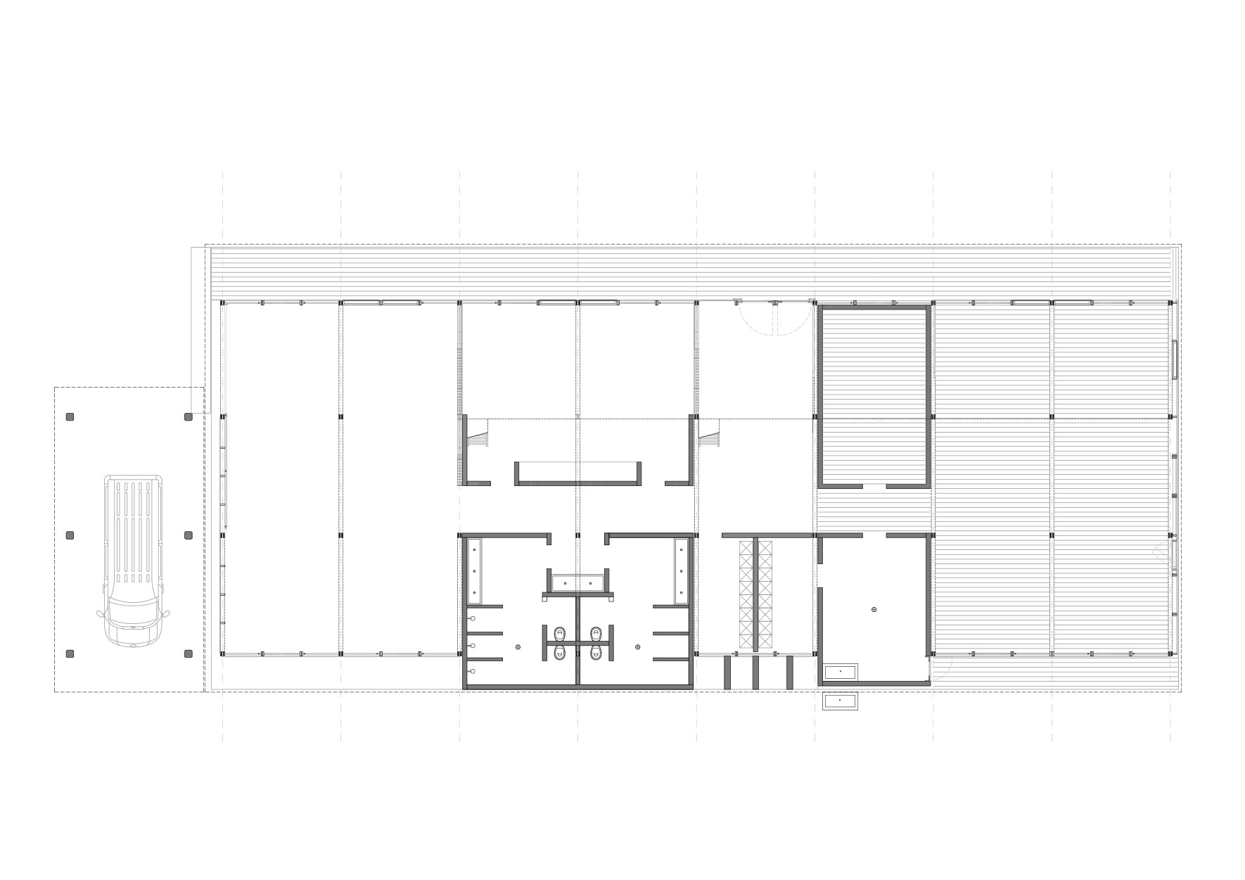
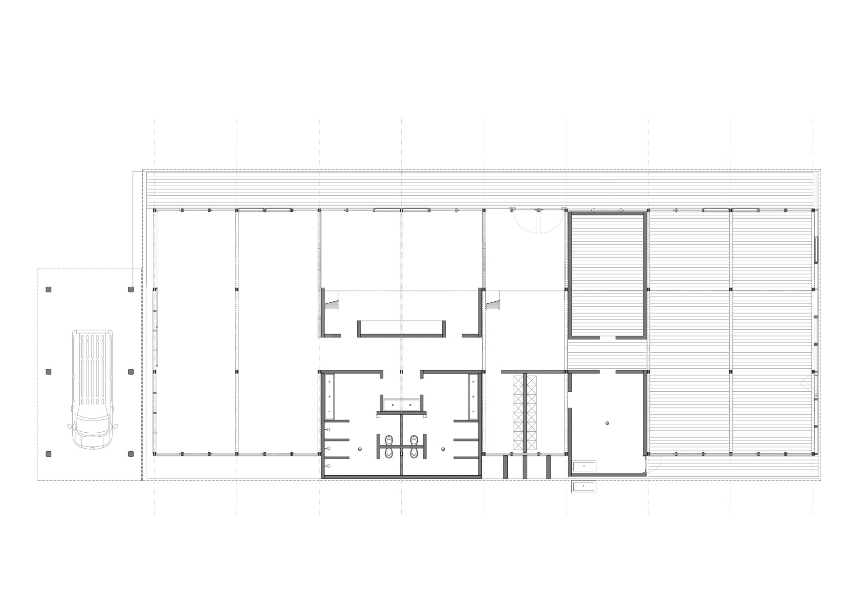
The project for a technical building school in Haiti was born from the collaboration with the Montfortian fathers and thanks to the participation of a group of Italian humanitarian volunteers.
- © michele milesi
- © michele milesi
- © michele milesi
- © michele milesi
- © giulia milesi
- © michele milesi
- © michele milesi
- © michele milesi
- © archos archive
- © archos archive
- © archos archive
- © archos archive
© michele milesi
Building a school created an excellent opportunity to start a process aimed at educating and involving the local community.
© michele milesi
This experience was a good example of applying the principles of participation, where the community was not just intended to be involved but was actually involved.
© michele milesi
© michele milesi
Designing the school was part of a larger project which aimed to create the conditions necessary for the local population to acquire the skills and knowledge necessary to independently design and implement projects based on dry wood technology, which allows to create earthquake proof buildings and involves set-by-step assembly, which is easily learned.
© giulia milesi
The dry assembly technique implies a transparent and clear way of building, where the technology involved is not based on chemical relations and where resistance to wind and rain, sun shielding and maintenance are planned in a visible and explicit way. Self-building in contexts like Haiti implies thinking about a culture that is based on primary needs and on the appropriation or re-appropriation of the surroundings, including of the materials and the space available in the environment.
© michele milesi
The structure, which was designed with engineer Marco Verdina, withstands gusts of wind up to 140 km/h.
© michele milesi
© michele milesi
© archos archive
© archos archive
© archos archive
© archos archive
See also the prototype for a wooden house in Haiti.











