école technique
pape jean XXIII
port au prince (rh)2013
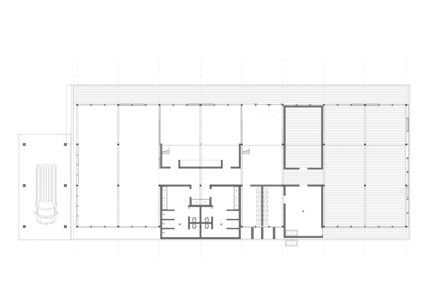
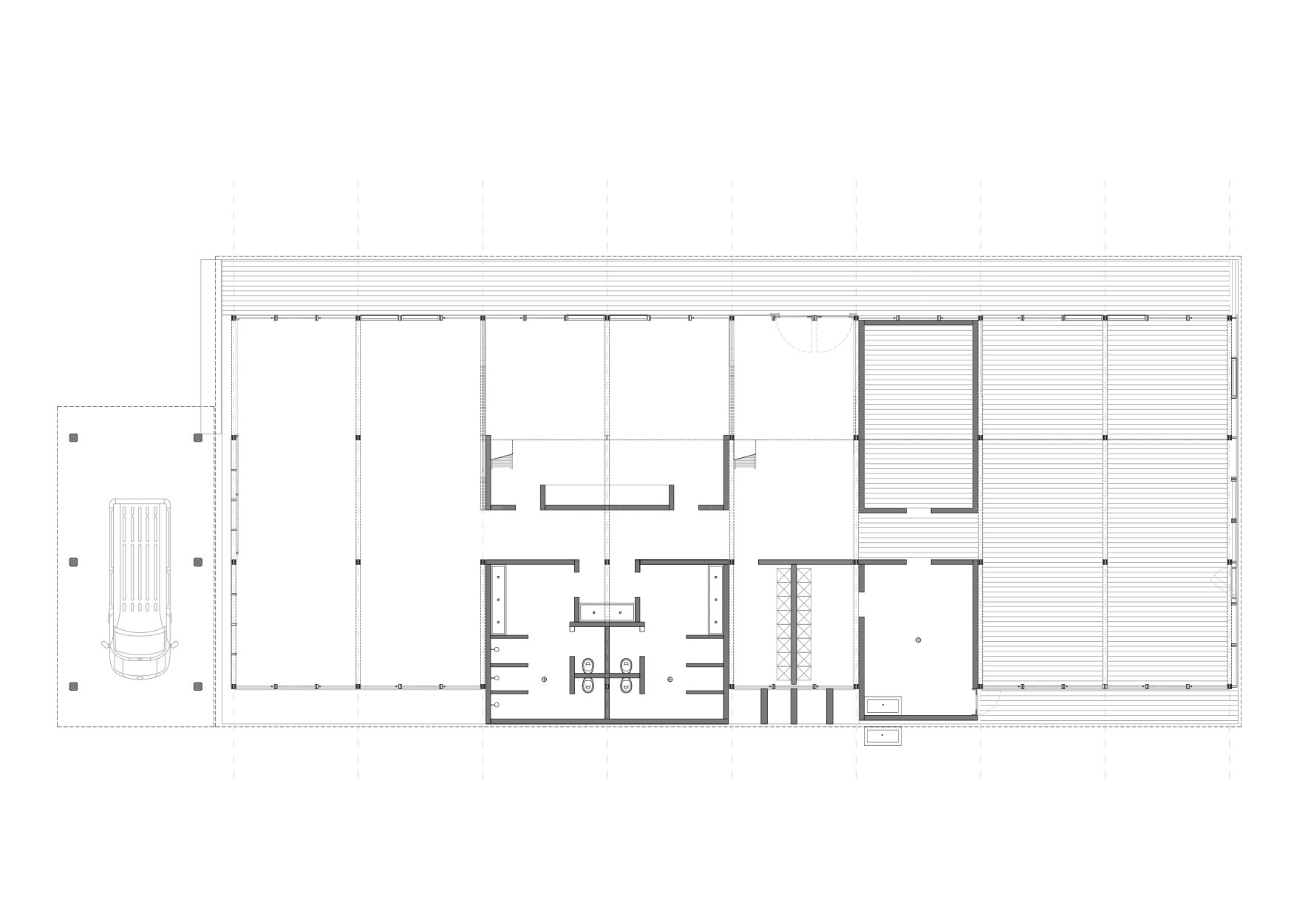
Il progetto per una scuola tecnica edile ad Haiti nasce dalla collaborazione con i padri Monfortani e grazie alla partecipazione di un gruppo di volontari umanitari italiani.
- © michele milesi
- © michele milesi
- © michele milesi
- © michele milesi
- © giulia milesi
- © archivio archos
- © archivio archos
- © michele milesi
- © archivio archos
- © archivio archos
- © archivio archos
- © archivio archos
© michele milesi
La scelta di realizzare una scuola edile appare come un'ottima opportunità per avviare un processo di educazione e coinvolgimento della comunità locale.
© michele milesi
L'esperienza è stata un esempio virtuoso di applicazione dei principi di partecipazione, dove il coinvolgimento della comunità non è stata solo un’intenzione ma realtà.
© michele milesi
L'esperienza progettuale si inserisce nell'ambito di un progetto più ampio che mira a creare le condizioni affinché la popolazione locale acquisisca le competenze e le conoscenze per progettare e realizzare in autonomia attraverso la tecnologia a secco in legno che, oltre a dare una risposta tecnologicamente appropriata al rischio sismico, prevede una costruzione per fasi facilmente apprendibile.
© michele milesi
La tecnica di costruzione a secco implica un modo di costruire trasparente, evidente, dove la tecnologia non è affidata a rapporti chimici e dove la resistenza al vento, alla pioggia, le schermature al sole e la manutenzione passano attraverso considerazioni visibili ed esplicite. Autocostruzione in ambienti come quello di Haiti vuol dire pensare a un tipo di cultura che si poggia sulla definizione delle esigenze primarie, sull'appropriazione o riappropriazione del proprio intorno, anche nelle parti più materiali e spaziali.
© giulia milesi
La struttura, studiata con l'ingegnere Marco Verdina, è in grado di resistere a raffiche di vento fino a 140 km/h.
© archivio archos
© archivio archos
© michele milesi
© archivio archos
© archivio archos
© archivio archos
© archivio archos











