nuovo dehor
GAMeC
bergamo (bg)2019
Un nuovo fabbricato dedicato al ristoro all’interno della corte principale della Galleria d’Arte Moderna e Contemporanea di Bergamo. Un edificio leggero, appena appoggiato al terreno, in grado di connettere, e al tempo stesso separare, la parte più urbana della corte di GAMeC con la parte più naturalistica in prossimità della Roggia Nuova e verso l’area verde del Parco Suardi.
- © Studio Archos
- © Studio Archos
- © Studio Archos
© Studio Archos
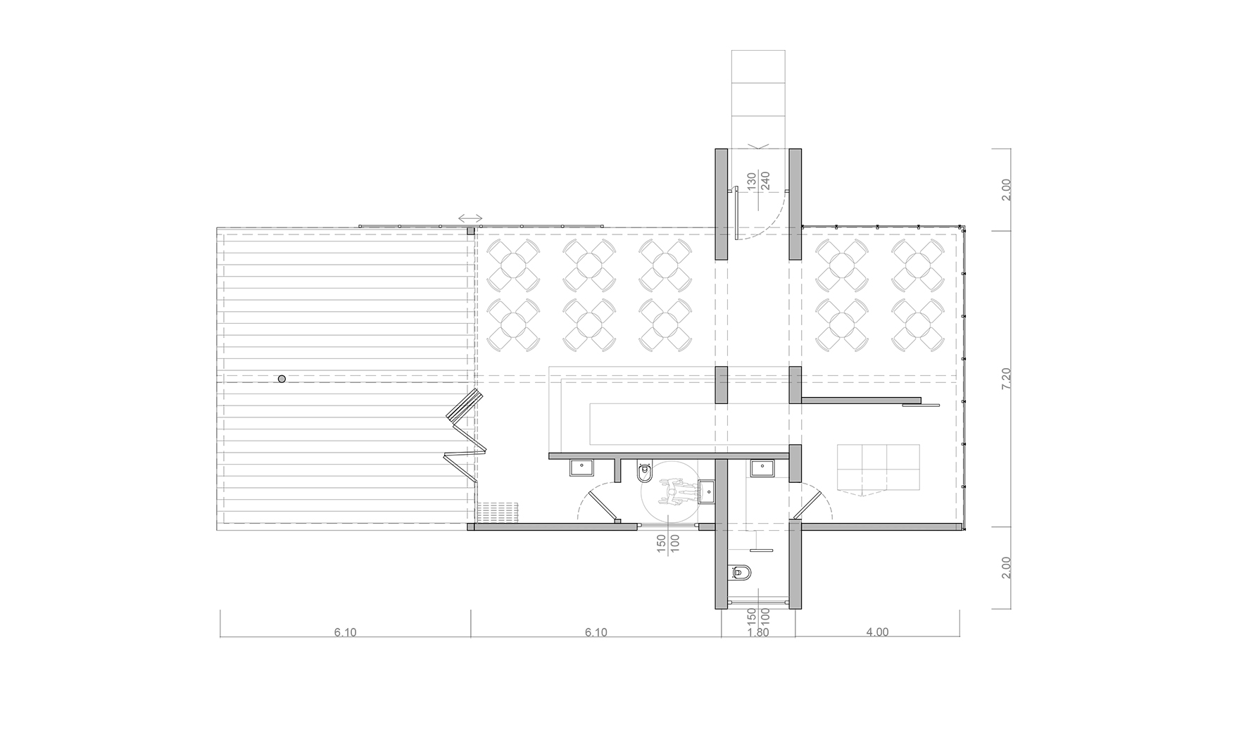
Due setti che identificano l’accesso al bar - accoppiati come un unico pilastro in calcestruzzo scuro a vista colorato in pasta tinta grigio scuro e texturizzato da una leggera impronta a vista lasciata dal cassero rivestito in telo di nylon - sono l’unica parte radicata a terra e sorreggono le due ali montate a secco che si controbilanciano toccando appena terra.
© Studio Archos
Il piccolo edificio diventa così una sorta di piattaforma galleggiante, nella quale i fruitori possono liberamente muoversi. I serramenti - scorrevole sul lato lungo e impacchettabile sul lato corto - consentono di modificare l’aspetto dell’edificio a seconda delle esigenze, delle stagioni e degli eventi. Aprendo infatti l’infisso impacchettabile si ottiene rapidamente un unico spazio coperto, dove la continuità tra interno ed esterno è regolata dal secondo infisso scorrevole lungo tutta la parete lunga.
© Studio Archos


